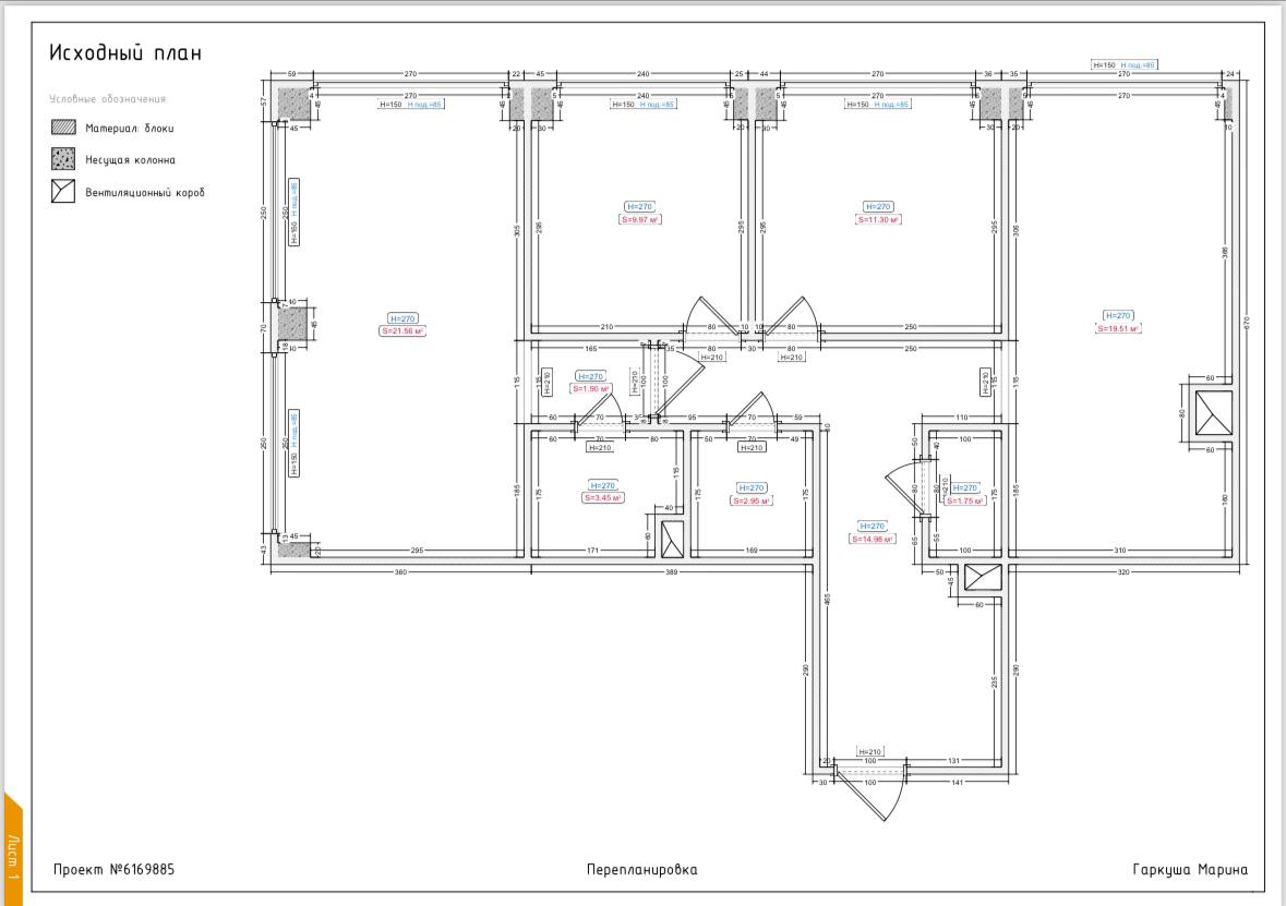
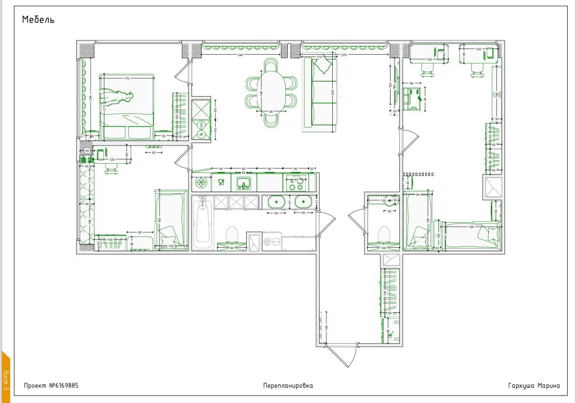
4-х комнатная квартира 88 кв м. Семья с тремя детьми- 12, 5 и 2 года.

4-х комнатная квартира 88 кв м. Семья с тремя детьми- 12, 5 и 2 года.

Семья с тремя детьми- 12, 5 и 2 года.
Задача: выделить большую кухню-гостиную, два санузла, младшим детям общую игровую зону
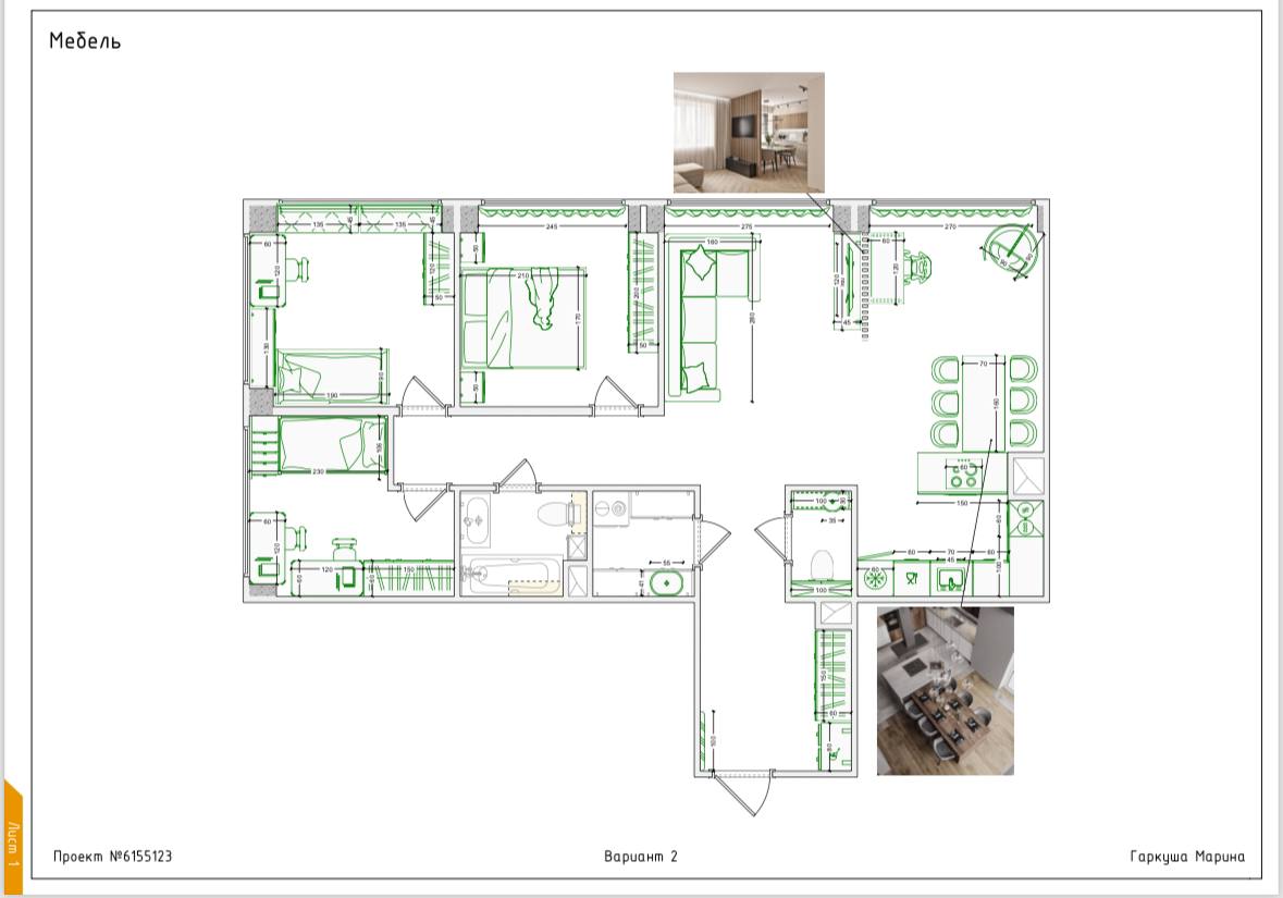
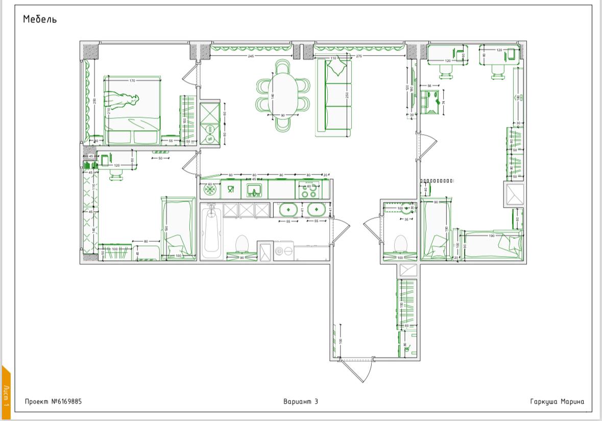
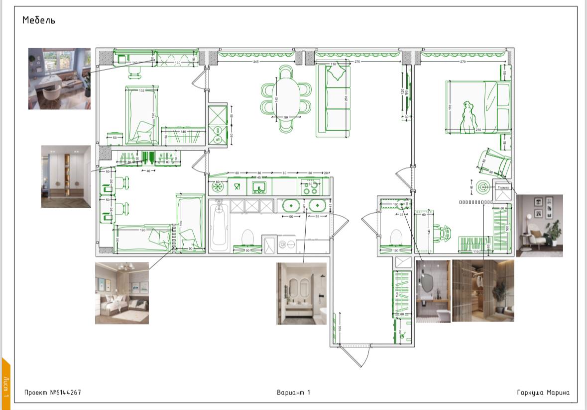
Было предложено 3 варианта перепланировки

Что сделано:

Кухня вынесена в коридор и объединена с двумя комнатами, выделен большой санузел с прачечной зоной, комната старшего ребенка, спальня для родителей и большая комната младших детей, разделенная на спальную и игровую зоны

Контакты